 
 
 
Collaborators
EcoLogicStudio
Exhibitions
EXPO 2015
Milan, Italy
Urban Algae Folly is an interactive pavilion that links the movement of people to the growth patterns of algae embedded in custom ETFE panels. The system creates a dialogue between the environmental needs of the algae for oxygen production and the needs of the visitors for shade. The oxygen production and CO2 consumption of the Folly are monitored in real-time and fed to a web interface that visualizes the values.
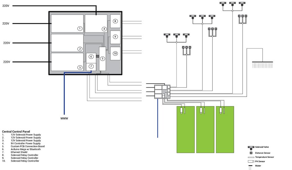
The project is created as a self regulated bioreactor that allows for human interaction when the algae is in a healthy state. To achieve this a series of 9 circuits of algae + water are created to allow circulation between underground holding tanks and the transparent ETFE structure. When the algae passes through the structure it is exposed to sunlight which triggers the photosynthesis process and produces oxygen. Consequently, while passing through the structure the algae become heated by the sun. The overall health of each algae circuit is monitored via temperature and PH sensors in the tanks. When the algae are at a healthy operating range, users can interact. The interaction is created through 9 proximity sensors and 9 solenoid valves. The activity level and location of visitors is determined by the sensors and the valves open/close to provide shade to the visitors by pumping more/less algae through different parts of the structure. This competition between algae health and the need for shade played out over the course of the exhibition.
Commissioned by Future Food District, EXPO Milan.